Скачайте новое приложение!

5

App Store Google Play

BEL APPARTEMENT CARRE D'OR

1/3

Сфото

Сфото
6 450 000 €
91 m² 2 Местные жители
AL 189 MC
Monaco - Carré d'Or
91 m² 2 Местные жители
6 450 000 € AL 189 MC

Simulateur de financement

Calculez votre capacité financière, les coûts et votre marge de manœuvre financière lors de l'achat d'un bien immobilier.

Описание

Proche commerces, commodités, Casino


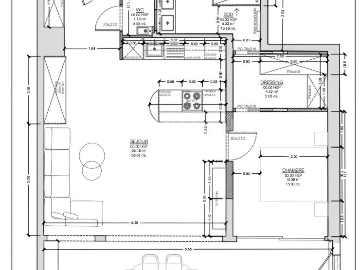
Situé au cœur du Carré d'Or, dans une belle résidence avec gardiennage 24h/24, bel appartement de 2 pièces principales en façade, en cours de rénovation, composé d'un hall d'entrée, séjour, cuisine équipée, chambre avec placards, salle de bains complète, belle loggia fermée. Prestations haut de gamme.

Cave et parking dans l'immeuble.

Функции
Ссылка:
AL 189 MC
Тип недвижимости:
домa для отдыха (kвартиры)
Договор:
продажа
Цена:
6 450 000 €
Пол:
7
Местные жители:
2
Номер:
1
Услуги:
1
Парковочные места:
1
Обитаемая поверхность:
66 m²
Общая площадь:
91 m²
Террасовая поверхность:
25 m²
Должность
Четверть:
Carré d'Or
Строительство:
Le Montaigne A
карта
Monaco
Дополнительные опции

Данный документ не является частью какого-либо предложения или контракта. Все измерения, площади и расстояния являются приблизительными. Точность описания и плана не гарантируется. Фотографии показывают только некоторые части имущества, на дату их занесения. Предложения по продаже действительны, только при продаже. Продажа не может состоятся при изменении цены или других условий, без предварительного соглашения.

Похожие объявления
    Посмотреть еще похожие объявления
    фигурирует в
    Запросить информацию об этом объекте BEL APPARTEMENT CARRE D'OR
    Запросить посещение
    Выберите ваши даты
    Выберите временные интервалы

    Это не бронирование: Ваши даты будут отправлены рекламодателю, который свяжется с вами.

    Продолжить
    /