Scarica la nuova app!

5

App Store Google Play

FONTVIEILLE: Spazioso appartamento familiare di 5 locali in affitto

28.000 €
305 m² +5 locali
FV - MMC - 031 - L-P2
Monaco - Fontvieille
305 m² 5 Locali
28.000 € FV - MMC - 031 - L-P2

Calcolatore ipoteche

Calcolate la sostenibilità, i costi e la vostra flessibilità finanziaria relativamente all’acquisto di un immobile.

Descrizione

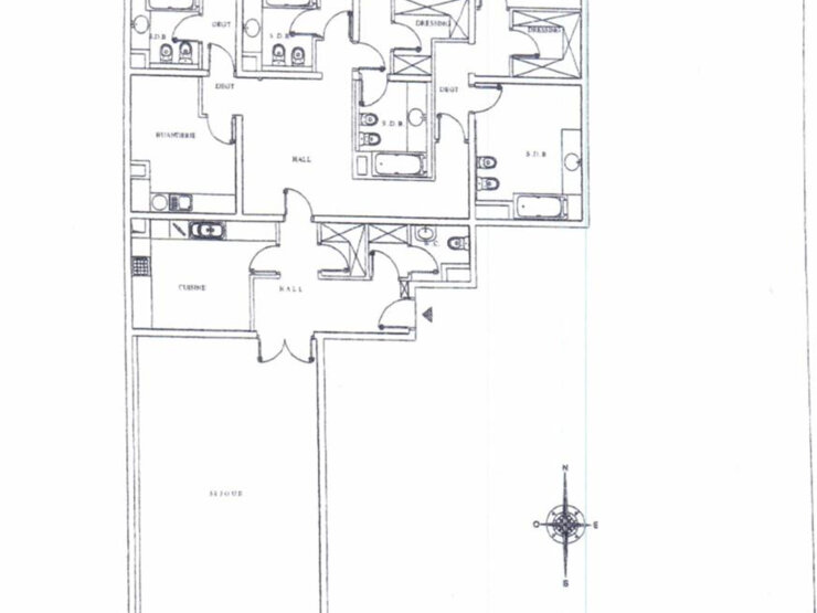
Situato nella rinomata residenza Grand Large, questo appartamento di cinque locali dispone di una piacevole terrazza con vista aperta sul porto e sul mare. Un contesto luminoso e confortevole, ideale per la vita familiare.


L’appartamento si sviluppa a partire da un ingresso che conduce a un soggiorno accogliente e zona pranzo, entrambi affacciati su una terrazza con vista sul porto e sul mare. La cucina indipendente è organizzata in modo funzionale, facilitando la gestione quotidiana.

La zona notte comprende diverse camere, con una distribuzione equilibrata tra spazi di vita e ambienti più riservati, adatta a una famiglia. La luminosità naturale e l’apertura verso l’esterno creano un’atmosfera tranquilla e piacevole, all’interno di una residenza apprezzata per la sua posizione vicino al porto.

Completano la proprietà due posti auto e una cantina.

Contattateci per maggiori dettagli o per organizzare una visita.

Caratteristiche
Riferimento:
FV - MMC - 031 - L-P2
Tipologia:
Appartamento
Contratto:
Affitto
Prezzo:
28.000 €
Spese di servizio:
4.000 €
Spese di servizio incluse:
No
Locali:
5
Camere:
4
Servizi:
4
Cantine:
1
Posti auto:
2
Superficie abitabile:
252 m²
Superficie totale:
305 m²
Superficie terrazzato:
53 m²
Posizione
Quartiere:
Fontvieille
Edificio:
Memmo Center
Mappa
Monaco
Opzioni aggiuntive

Questo documento non rappresenta un offerta o un contratto. Tutte le misure, superfici e distanze sono approssimative. Le descrizioni e planimetrie sono date a titolo indicativo e la loro esattezza non è garantita. Le fotografie mostrano solo alcune parti della proprietà alla data in cui son state fatte. L offerta di Vendita è valida salvo in caso di Vendita/affitto, ritiro dalla Vendita/affito o cambio del prezzo o altra condizione, senza avviso preliminare.

Annunci simili
    Vedi altri annunci simili
    Trovi questo annuncio in
    Richiedi info per questo immobile FONTVIEILLE: Spazioso appartamento familiare di 5 locali in affitto
    Richiedi visita
    Seleziona le tue disponibilità
    Seleziona le fasce orarie

    Questa non è una prenotazione: le tue disponibilità saranno inviate all’inserzionista che si occuperà di ricontattarti.

    Prosegui
    /