Скачайте новое приложение!

5

App Store Google Play

LE VICTORIA PALACE RESIDENCE NEUVE PROCHE MONACO

1/4
995 000 €
158 m² 4 Местные жители
V0132RC
Beausoleil -
158 m² 4 Местные жители
995 000 € V0132RC
Описание
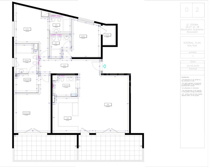
Bel immeuble récent livré en 2024 situé dans le quartier Guynemer à Beausoleil, proche de Monaco et toutes commodités. Spacieux appartement T4 résultant de la réunion de deux unités, en cours d'achèvement.

L'appartement lumineux se compose d'une grande pièce de vie, cuisine, 3 chambres avec 3 salles de bains, grande terrasse de 35m2, vue panoramique mer Monaco et Italie. Ce bien est à fort potentiel mais est à l'état brut, il nécessite d'être fini et décoré, les travaux doivent être finalisés au goût du futur acquéreur.

Possibilité d'acquérir des grands garages fermés pour un coût supplémentaire. Les honoraires sont à la charge du vendeur.
Функции
Ссылка:
V0132RC
Тип недвижимости:
домa для отдыха (kвартиры)
Договор:
продажа
Цена:
995 000 €
Местные жители:
4
Номер:
3
Услуги:
3
Обитаемая поверхность:
121 m²
Общая площадь:
158 m²
Террасовая поверхность:
37 m²
Функции:
Дополнительные опции

Данный документ не является частью какого-либо предложения или контракта. Все измерения, площади и расстояния являются приблизительными. Точность описания и плана не гарантируется. Фотографии показывают только некоторые части имущества, на дату их занесения. Предложения по продаже действительны, только при продаже. Продажа не может состоятся при изменении цены или других условий, без предварительного соглашения.

Похожие объявления
    Посмотреть еще похожие объявления
    фигурирует в
    Запросить информацию об этом объекте LE VICTORIA PALACE RESIDENCE NEUVE PROCHE MONACO
    Запросить посещение
    Выберите ваши даты
    Выберите временные интервалы

    Это не бронирование: Ваши даты будут отправлены рекламодателю, который свяжется с вами.

    Продолжить
    /