Скачайте новое приложение!

5

App Store Google Play

Beau local avec belle vitrine

1/2

Сфото

Сфото
4 450 €
63 m² 3 Местные жители
AL 109 MC
Monaco - Fontvieille
63 m² 3 Местные жители
4 450 € AL 109 MC
Описание

Proche commodités et commerces


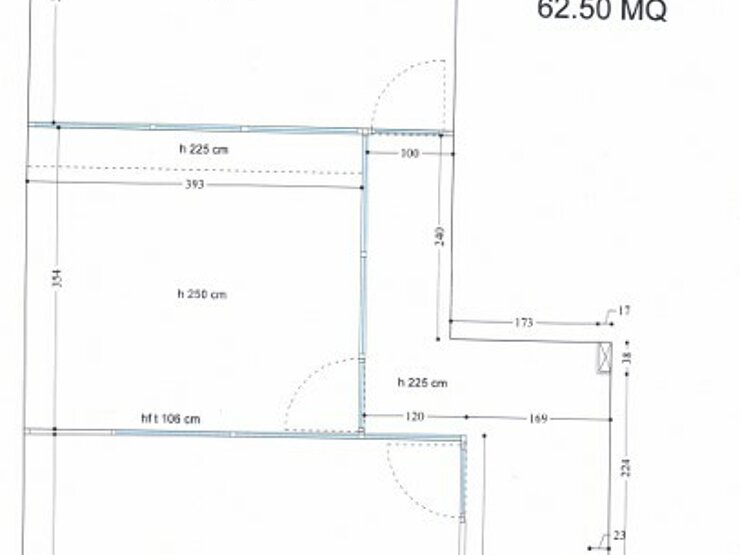
Situé en face du port de Fontvieille, magnifique bureau composé d'une grande pièce principale actuellement agencée en 3 bureaux vitrés et cloisonnés, sas avec coin kitchenette, WC, climatisation. Grande vitrine.

Loyer mensuel : 4 450 HT + 890 TVA 20% + 500 charges forfaitaires (consommation eau froide + chaude, climatisation, chauffage, réception colis et sécurité poste de garde) total : 5 840 €uros - Bail précaire 35 mois.

Функции
Ссылка:
AL 109 MC
Тип недвижимости:
Офис
Договор:
аренда
Цена:
4 450 €
Расходы на обслуживание:
500 €
Затраты на обслуживание включены:
Нет
Местные жители:
3
Обитаемая поверхность:
63 m²
Общая площадь:
63 m²
Должность
Четверть:
Fontvieille
Дополнительные опции

Данный документ не является частью какого-либо предложения или контракта. Все измерения, площади и расстояния являются приблизительными. Точность описания и плана не гарантируется. Фотографии показывают только некоторые части имущества, на дату их занесения. Предложения по продаже действительны, только при продаже. Продажа не может состоятся при изменении цены или других условий, без предварительного соглашения.

Похожие объявления
    Посмотреть еще похожие объявления
    фигурирует в
    Запросить информацию об этом объекте Beau local avec belle vitrine
    Запросить посещение
    Выберите ваши даты
    Выберите временные интервалы

    Это не бронирование: Ваши даты будут отправлены рекламодателю, который свяжется с вами.

    Продолжить
    /