Скачайте новое приложение!

5

App Store Google Play

LES LIGURES - BUREAU / LOCAL COMMERCIAL

1/4
5 500 000 €
AL 140 MC
Monaco - Jardin Exotique
250 m²
5 500 000 € AL 140 MC
Описание

Piscine Tennis Salle de Sport


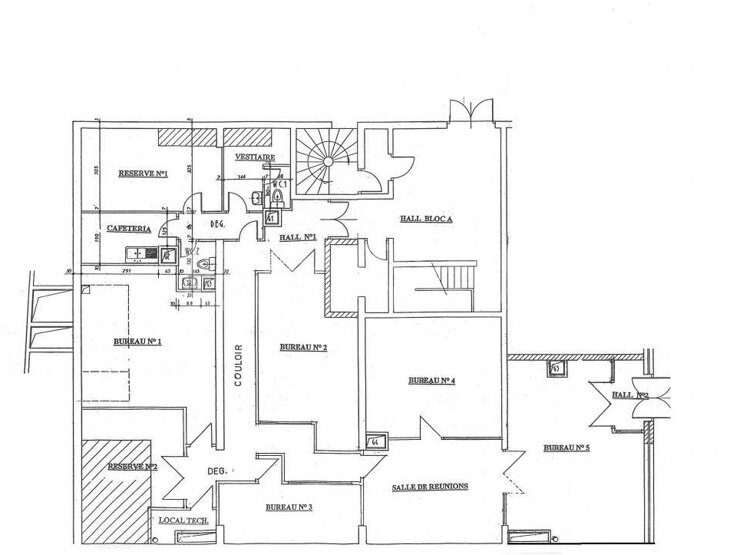
Situé dans une résidence avec concierge 24h/24, avec salle de sport, piscine, tennis, et jardins, actuellement cloisonné et loué en usage de bureau administratif, composé de 2 halls d'entrée, une entrée niveau concierge et une entrée direct sur l'extérieur de l'immeuble/zone livraison, salle de réunion, 5 bureaux, réserve, cuisine, toilette hommes, toilette femmes, local technique, climatisation réversible.

Функции
Ссылка:
AL 140 MC
Тип недвижимости:
Коммерческий местный житель
Договор:
продажа
Цена:
5 500 000 €
Пол:
4
Обитаемая поверхность:
250 m²
Общая площадь:
250 m²
Должность
Четверть:
Jardin Exotique
Строительство:
Les Ligures
карта
Monaco
Дополнительные опции

Данный документ не является частью какого-либо предложения или контракта. Все измерения, площади и расстояния являются приблизительными. Точность описания и плана не гарантируется. Фотографии показывают только некоторые части имущества, на дату их занесения. Предложения по продаже действительны, только при продаже. Продажа не может состоятся при изменении цены или других условий, без предварительного соглашения.

Похожие объявления
    Посмотреть еще похожие объявления
    фигурирует в
    Запросить информацию об этом объекте LES LIGURES - BUREAU / LOCAL COMMERCIAL
    Запросить посещение
    Выберите ваши даты
    Выберите временные интервалы

    Это не бронирование: Ваши даты будут отправлены рекламодателю, который свяжется с вами.

    Продолжить
    /