Скачайте новое приложение!

5

App Store Google Play

LOCAL À LOUER - RAPHAEL

1/1

Сфото

Сфото
8 700 €
94 m²
RAPH725
Monaco - Fontvieille
94 m²
8 700 € RAPH725
Описание

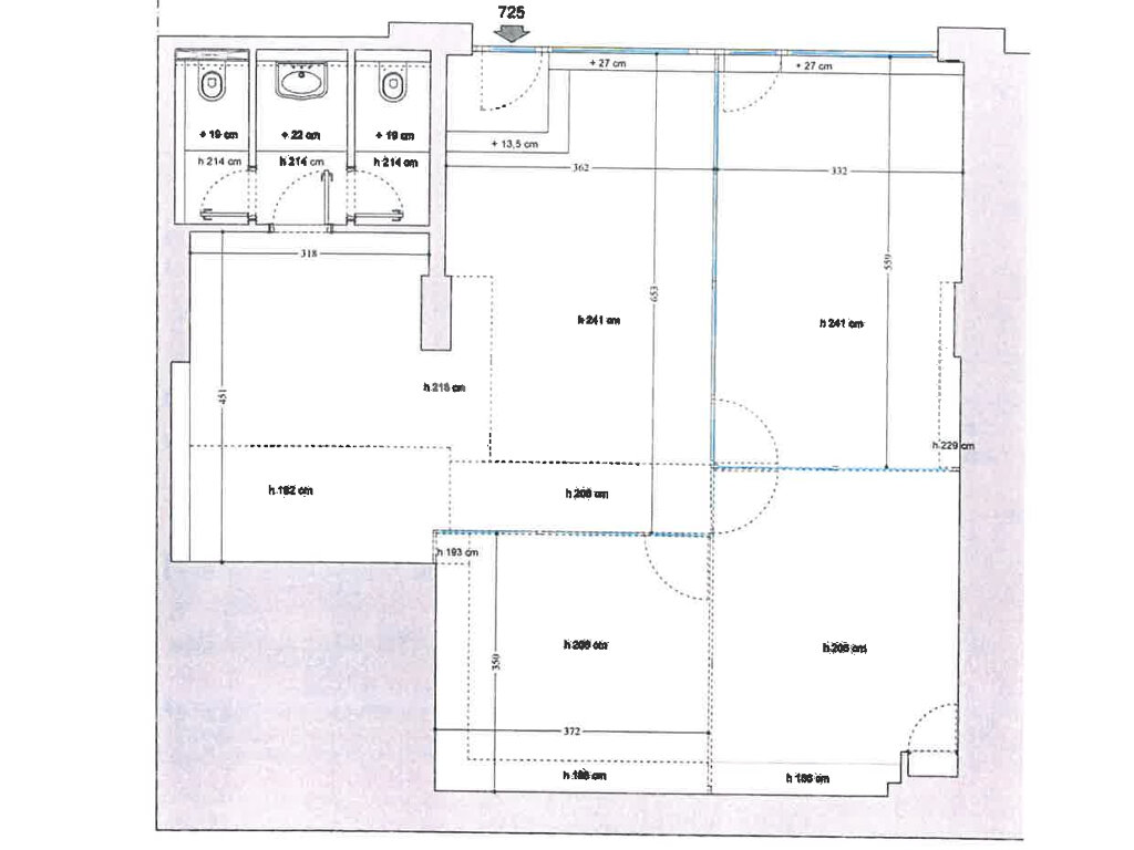
Beau local refait à neuf avec du parquet au sol, il se compose comme suit :

Grande vitrine vue sur les jardins, 2 portes d'accès, Le local est actuellement cloisonné. Environnement très calme. 

Bail d'un an. 

Функции
Ссылка:
RAPH725
Тип недвижимости:
Офис
Договор:
аренда
Цена:
8 700 €
Расходы на обслуживание:
400 €
Затраты на обслуживание включены:
Нет
Обитаемая поверхность:
94 m²
Общая площадь:
94 m²
Должность
Четверть:
Fontvieille
Строительство:
Raphael
карта
Monaco
Дополнительные опции

Данный документ не является частью какого-либо предложения или контракта. Все измерения, площади и расстояния являются приблизительными. Точность описания и плана не гарантируется. Фотографии показывают только некоторые части имущества, на дату их занесения. Предложения по продаже действительны, только при продаже. Продажа не может состоятся при изменении цены или других условий, без предварительного соглашения.

Похожие объявления
    Посмотреть еще похожие объявления
    фигурирует в
    Запросить информацию об этом объекте LOCAL À LOUER - RAPHAEL
    Запросить посещение
    Выберите ваши даты
    Выберите временные интервалы

    Это не бронирование: Ваши даты будут отправлены рекламодателю, который свяжется с вами.

    Продолжить
    /