Скачайте новое приложение!

5

App Store Google Play

Jardin Exotique - Spacieux bureaux modulables dans résidence de standing

1/4
5 900 000 €
SP-LA-84160300
Monaco - Jardin Exotique
250 m²
5 900 000 € SP-LA-84160300

Simulateur de financement

Calculez votre capacité financière, les coûts et votre marge de manœuvre financière lors de l'achat d'un bien immobilier.

Описание

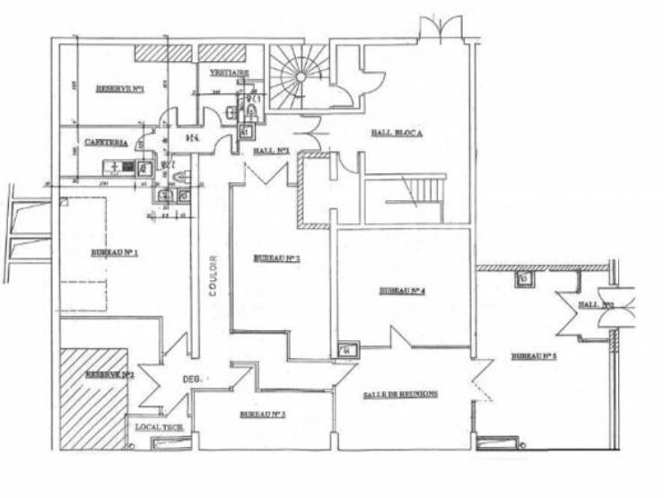
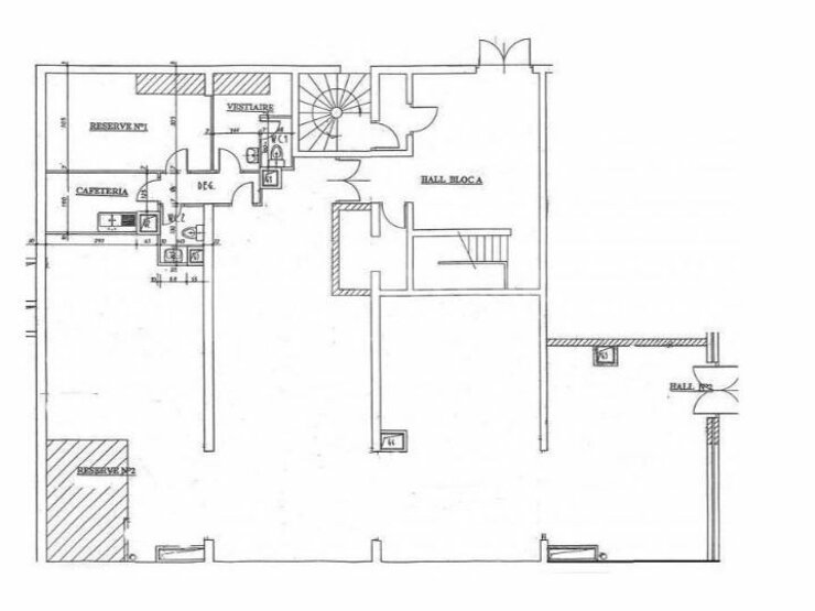
Dans une résidence luxueuse et sécurisée, agrémentée d'un service de conciergerie, se révèlent 250 m2 de bureaux flexibles, mariant avec harmonie confort et fonctionnalité.


Au cœur de ce lieu d'exception, vous pourrez profiter d'un vaste parc verdoyant, d'une piscine scintillante, d'une salle de fitness dernier cri et d'un court de tennis pour des moments de relaxation bien mérités après une journée de travail intense.

Équipés de la climatisation réversible pour un confort optimal toute l'année, ainsi que de salles de bains séparées pour hommes et femmes, d'une cafétéria chaleureuse et d'un réseau câblé performant, ces bureaux offrent un environnement professionnel incomparable, prêt à accueillir votre entreprise avec élégance et efficacité.

Функции
Ссылка:
SP-LA-84160300
Тип недвижимости:
Коммерческий местный житель
Договор:
продажа
Цена:
5 900 000 €
Обитаемая поверхность:
250 m²
Общая площадь:
250 m²
Должность
Четверть:
Jardin Exotique
Строительство:
Les Ligures
карта
Monaco
Дополнительные опции

Данный документ не является частью какого-либо предложения или контракта. Все измерения, площади и расстояния являются приблизительными. Точность описания и плана не гарантируется. Фотографии показывают только некоторые части имущества, на дату их занесения. Предложения по продаже действительны, только при продаже. Продажа не может состоятся при изменении цены или других условий, без предварительного соглашения.

Похожие объявления
    Посмотреть еще похожие объявления
    фигурирует в
    Запросить информацию об этом объекте Jardin Exotique - Spacieux bureaux modulables dans résidence de standing
    Запросить посещение
    Выберите ваши даты
    Выберите временные интервалы

    Это не бронирование: Ваши даты будут отправлены рекламодателю, который свяжется с вами.

    Продолжить
    /