Téléchargez la nouvelle app!

5

App Store Google Play

ROCAZUR - 4 Pièces 150 m² - 135 m² habitables + 15 m² loggia - 1 Cave et 2 Parkings

1/4
6 450 000 €
150 m² 4 Pièces
UOV 2129
Monaco - La Rousse - Saint Roman
150 m² 4 Pièces
6 450 000 € UOV 2129

Simulateur de financement

Calculez votre capacité financière, les coûts et votre marge de manœuvre financière lors de l'achat d'un bien immobilier.

Description

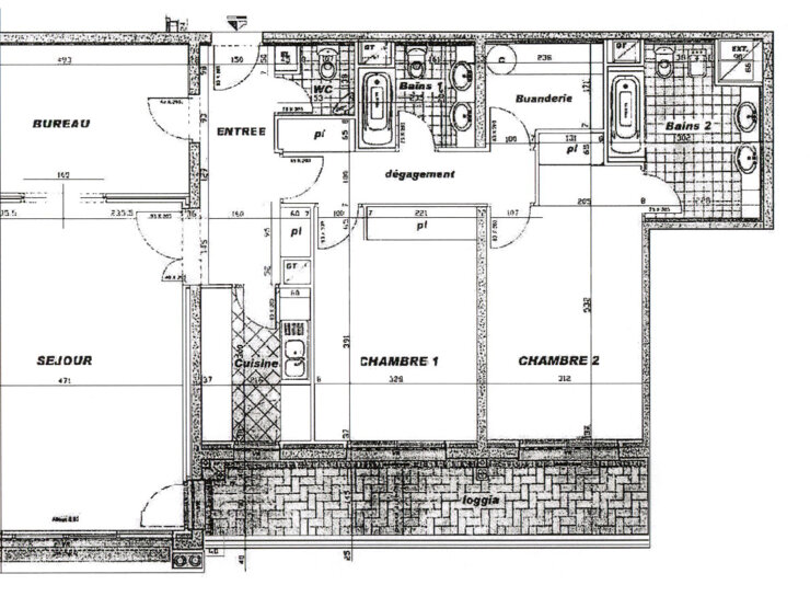
Grand Appartement familial de 4 Pièces avec Cave et 2 Parkings


ROCAZUR - Résidence de standing, proche du centre, commerces de proximité et accès aux plages - Idéal pour une famille. Spacieux Appartement de 4 Pièces offrant une belle surface de 135 m² habitables + 15 m² de loggia - composé de :

Entrée, Grand Séjour, Salle à manger ou Bureau ou 3ème chambre, 2 Chambres, 2 Salles de bains, Cuisine équipée, Buanderie, WC invités, nombreux Placards, Dégagement, Loggia

 2 grands Emplacements de parking côte à côte et 1 Cave

Caractéristiques
Référence:
UOV 2129
Type de propriété:
Appartement
Contrat:
Vente
Prix:
6 450 000 €
Charges annuelles:
7500
Pièces:
4
Caves:
1
Places de stationnement:
2
Superficie habitable:
135 m²
Superficie totale:
150 m²
Superficie terrasse:
15 m²
Caractéristiques:
Situation
Quartier:
La Rousse - Saint Roman
Immeuble:
Rocazur
Carte
Monaco
Options additionelles

Ce document ne fait partie d'aucune offre ou contrat. Toutes mesures, surfaces et distances sont approximatives. Le descriptif et les plans ne sont donnés qu'à titre indicatif et leur exactitude n'est pas garantie. Les photographies ne montrent que certaines parties de la propriété. L'offre est valable sauf en cas de vente, retrait de vente, changement de prix ou d'autres conditions, sans préalable.

Annonces similaires
    Voir d autres annonces similaires
    Retrouvez cette annonce dans
    Demander des informations pour cette propriété ROCAZUR - 4 Pièces 150 m² - 135 m² habitables + 15 m² loggia - 1 Cave et 2 Parkings
    Demander une visite
    Sélectionnez vos dates
    Sélectionnez les créneaux horaires

    Ceci n'est pas une réservation: Vos dates seront envoyées à l'annonceur qui vous contactera.

    Continuer
    /