Téléchargez la nouvelle app!

5

App Store Google Play

Magnifique studio rénové à usage mixte - Le Montaigne

1/3

Voulez-vous plus de photos?

Demandez à l'agence
1 790 000 €
25 m² Studio
V-150
Monaco - Carré d'Or
25 m² 1 pièces
1 790 000 € V-150

Simulateur de financement

Calculez votre capacité financière, les coûts et votre marge de manœuvre financière lors de l'achat d'un bien immobilier.

Description

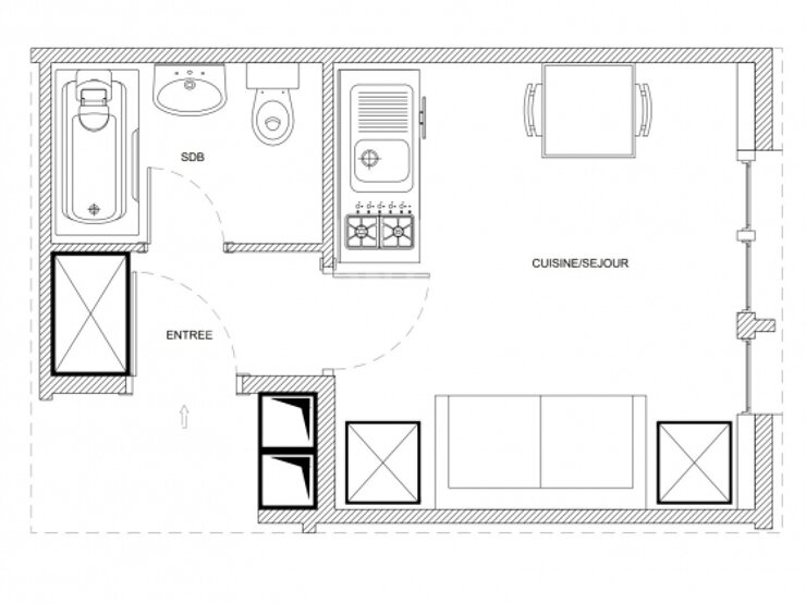
Découvrez ce studio d'exception situé au 5ème étage de la prestigieuse résidence "Le Montaigne", à quelques pas de la célèbre Place du Casino. Entièrement rénové, cet espace lumineux et raffiné convient aussi bien pour l'habitation que pour un bureau.


Cet accueillant studio se compose d'un hall d’entrée, d'une pièce principale spacieuse et d'une salle de bain élégamment équipée, le tout offrant une vue apaisante sur la cour et le jardin.

Une cave est disponible à la vente à 100.000€

Caractéristiques
Référence:
V-150
Type de propriété:
Appartement
Contrat:
Vente
Prix:
1 790 000 €
Etage:
5
Pièces:
1
Salles de bain:
1
Superficie habitable:
25 m²
Superficie totale:
25 m²
Caractéristiques:
Situation
Quartier:
Carré d'Or
Immeuble:
Le Montaigne B/C
Carte
Monaco
Options additionelles

Ce document ne fait partie d'aucune offre ou contrat. Toutes mesures, surfaces et distances sont approximatives. Le descriptif et les plans ne sont donnés qu'à titre indicatif et leur exactitude n'est pas garantie. Les photographies ne montrent que certaines parties de la propriété. L'offre est valable sauf en cas de vente, retrait de vente, changement de prix ou d'autres conditions, sans préalable.

Annonces similaires
    Voir d autres annonces similaires
    Retrouvez cette annonce dans
    Demander des informations pour cette propriété Magnifique studio rénové à usage mixte - Le Montaigne
    Demander une visite
    Sélectionnez vos dates
    Sélectionnez les créneaux horaires

    Ceci n'est pas une réservation: Vos dates seront envoyées à l'annonceur qui vous contactera.

    Continuer
    /