Lade die neue App herunter!

5

App Store Google Play

Élégant 5 Pièces avec Terrasse et Vue Panoramique Mer & Port

1/4
28.000 €
305 m² +5 Einheimische
WLH-914
Monaco - Fontvieille
305 m² 5 Zimmer
28.000 € WLH-914

Simulateur de financement

Calculez votre capacité financière, les coûts et votre marge de manœuvre financière lors de l'achat d'un bien immobilier.

Beschreibung

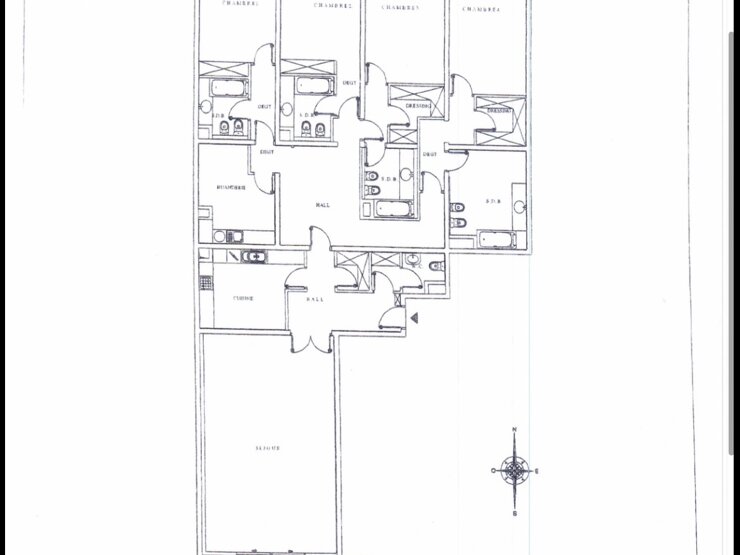
Magnifique appartement 5 pièces offrant une vue imprenable sur la mer, le port et Cap d’Ail depuis le séjour et sa terrasse. L’espace de vie se compose d’un grand séjour lumineux, d’une cuisine moderne entièrement équipée, ainsi que de toilettes invités et d’un vestiaire.
La partie nuit, parfaitement séparée, propose un vaste hall de distribution desservant une buanderie, quatre belles chambres (dont deux avec dressing et deux avec placards), chacune bénéficiant de sa propre salle de bains et d’un accès à une loggia.
Deux parkings côte à côte et une cave complètent ce bien confortable et fonctionnel. Disponible le 01/06/2026.

Merkmale
Bezug:
WLH-914
Typ der Immobilie:
Wohnung
Vertrag:
Miete
Preis:
28.000 €
Servicekosten:
4.000 €
Servicekosten enthalten:
Nein
Stockwerk:
3
Zimmer:
5
Zimmer:
4
Keller:
1
Parkplätze:
2
Wohnbereich:
252 m²
Gesamtfläche:
305 m²
Fläche der Terrasse:
53 m²
Position
Stadtbezirk:
Fontvieille
Gebäude:
Memmo Center
Karte
Monaco
Zusatzoptionen

Dieses Dokument stellt weder ein Angebot noch einen Vertrag dar. Alle Maße, Flächen und Entfernungen sind ungefähre Angaben. Die Beschreibungen und Pläne dienen nur zur Information und ihre Richtigkeit wird nicht garantiert. Die Fotos zeigen nur Teile der Immobilie zu dem Zeitpunkt, an dem sie aufgenommen wurden. Das Verkaufsangebot ist gültig, es sei denn, es handelt sich um einen Verkauf/Vermietung, einen Rücktritt vom Verkauf/Vermietung oder eine Änderung des Preises oder anderer Bedingungen, ohne vorherige Ankündigung.

Ähnliche Anzeigen
    Mehr ähnliche Anzeigen ansehen
    Finden Sie diese Anzeige in
    Fordern Sie Informationen zu dieser Immobilie an Élégant 5 Pièces avec Terrasse et Vue Panoramique Mer & Port
    Besichtigung anfordern
    Wählen Sie Ihre Daten aus
    Wählen Sie die Zeitfenster aus

    Dies ist keine Buchung: Ihre Daten werden an den Inserenten gesendet, der Sie kontaktieren wird.

    Fortfahren
    /