Lade die neue App herunter!

5

App Store Google Play

CENTRAL BUSINESS BUSINESS HINTERGRUND TAKEAWAY, SCHMUCK, KUNST

1/1

Möchten Sie mehr Fotos?

Anfragen an die Agentur
700.000 €
37 m²
PEV569
Monaco - Monte-Carlo
37 m²
700.000 € PEV569
Beschreibung

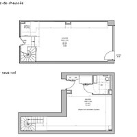
Entdecken Sie diese charmante Boutique auf zwei Ebenen am Boulevard des Moulins. Mit seinem Showroom im Erdgeschoss, einem einladenden Zwischengeschoss und einem attraktiven Schaufenster ist dieser Raum von insgesamt 37 m2 ideal für ein Kunst- oder Juweliergeschäft.


Diese charmante Boutique befindet sich im prestigeträchtigen Viertel Carré d'Or am Boulevard des Moulins und erstreckt sich über zwei Ebenen, mit einem Ausstellungsraum und einem Verkaufsraum im Erdgeschoss und bietet eine Gesamtfläche von 25 m2, ergänzt durch ein Zwischengeschoss von 12 m2. Mit einem schönen Schaufenster und einer idealen Lage im Herzen von Monte Carlo eignet sich dieses Geschäft perfekt für ein Kunst- und Juweliergeschäft.
Derzeit im 4. Jahr eines 3/6/9-Mietvertrags liegt die monatliche Miete bei 2700 €, mit minimalen jährlichen Gebühren. Das zum Verkauf angebotene Unternehmen hat einen breiten Unternehmenszweck.
Dies ist eine außergewöhnliche Gelegenheit, ein Unternehmen in bester Lage zu erwerben, das bereit ist, Ihr Unternehmen in einer der dynamischsten und begehrtesten Gegenden von Monte-Carlo zu beherbergen. Weitere Informationen erhalten Sie auf Anfrage.

Merkmale
Bezug:
PEV569
Typ der Immobilie:
gewerbliche Tätigkeiten
Vertrag:
Verkauf
Preis:
700.000 €
Jährliche Ausgaben:
400
Wohnbereich:
37 m²
Gesamtfläche:
37 m²
Andere Eigenschaften:
Position
Stadtbezirk:
Monte-Carlo
Karte
Monaco
Zusatzoptionen

Dieses Dokument stellt weder ein Angebot noch einen Vertrag dar. Alle Maße, Flächen und Entfernungen sind ungefähre Angaben. Die Beschreibungen und Pläne dienen nur zur Information und ihre Richtigkeit wird nicht garantiert. Die Fotos zeigen nur Teile der Immobilie zu dem Zeitpunkt, an dem sie aufgenommen wurden. Das Verkaufsangebot ist gültig, es sei denn, es handelt sich um einen Verkauf/Vermietung, einen Rücktritt vom Verkauf/Vermietung oder eine Änderung des Preises oder anderer Bedingungen, ohne vorherige Ankündigung.

Ähnliche Anzeigen
    Mehr ähnliche Anzeigen ansehen
    Finden Sie diese Anzeige in
    Fordern Sie Informationen zu dieser Immobilie an CENTRAL BUSINESS BUSINESS HINTERGRUND TAKEAWAY, SCHMUCK, KUNST
    Besichtigung anfordern
    Wählen Sie Ihre Daten aus
    Wählen Sie die Zeitfenster aus

    Dies ist keine Buchung: Ihre Daten werden an den Inserenten gesendet, der Sie kontaktieren wird.

    Fortfahren
    /