Piscina Tennis Palestra
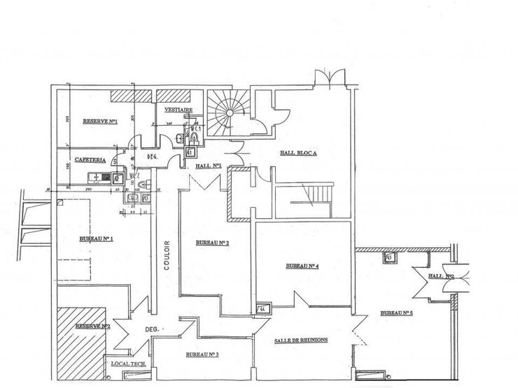
Situata in una residenza con concierge 24 ore su 24, con palestra, piscina, campo da tennis e giardini, attualmente divisa e affittata per l'uso come ufficio amministrativo, composta da 2 atrii d'ingresso, un ingresso a livello concierge e un ingresso diretto all'esterno dell'edificio/area consegna, Sala riunioni, 5 uffici, magazzino, cucina/mensa, bagni maschili, bagni femminili, sala tecnica, aria condizionata reversibile. Affitto mensile €8.900,00 + €1.780,00 (IVA del 20%) + 710,00 € prov/commissioni = 11.390,00 € IVA inclusa
Possibilità di suddividere l'ufficio in due parti, ciascuna con un proprio ingresso indipendente:
- Ufficio 1 con ingresso esterno con una superficie di circa 115 m² - Affitto mensile: 5.000,00 € + 1.000,00 € (20% IVA) + 390,00 € prov/commissioni = 6.390,00 € IVA inclusa
- Ufficio 2 con ingresso sul lato della reception con una superficie di circa 88 m² - Affitto mensile: €3.900,00 + €780 (20% IVA) + €320,00 prov/commissioni = €5.000,00 IVA inclusa
Aree comuni dei due uffici: bagni maschili e femminili, sala tecnica, corridoio e mensa.
Questo documento non rappresenta un offerta o un contratto. Tutte le misure, superfici e distanze sono approssimative. Le descrizioni e planimetrie sono date a titolo indicativo e la loro esattezza non è garantita. Le fotografie mostrano solo alcune parti della proprietà alla data in cui son state fatte. L offerta di Vendita è valida salvo in caso di Vendita/affitto, ritiro dalla Vendita/affito o cambio del prezzo o altra condizione, senza avviso preliminare.