Scarica la nuova app!

5

App Store Google Play

DONATELLO - Nel quartiere di Fontvieille, bellissimo appartamento di 2 locali, ristrutturato.

1/8
2.333.100 €
59 m² 2 Locali
517V15587A
Monaco - Fontvieille
59 m² 2 Locali
2.333.100 € 517V15587A
Descrizione
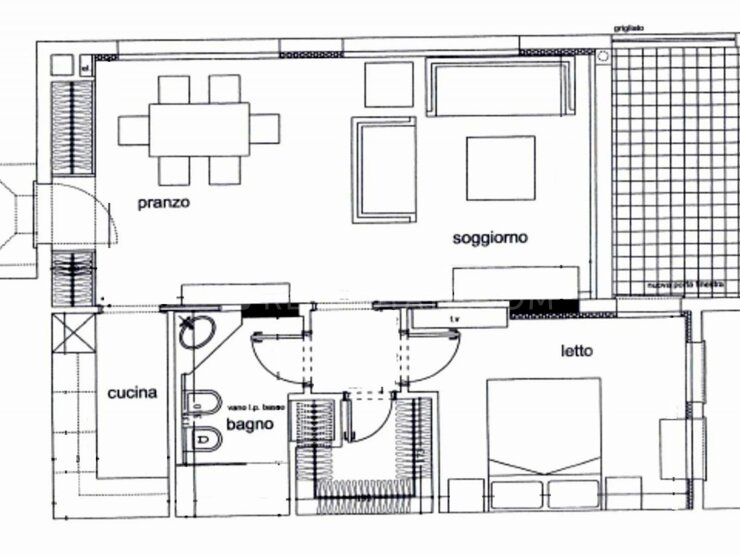
Nel quartiere di Fontvieille, bellissimo appartamento di 2 locali, ristrutturato, Circa 59 mq di superficie abitabile di cui 51 mq di superficie abitabile e 8 mq di loggia. L'appartamento, molto silenzioso, al piano terra, è in ottime condizioni con pavimento in parquet, doppi vetri oscuranti e aria condizionata reversibile. Ingresso, soggiorno, cucina arredata, bagno, ripostiglio, loggia, una grande cantina. Gode di ingresso indipendente e offre anche la possibilità di uso misto. Affittato fino al 15 novembre 2025 canone mensile € 4.400 + € 500
Caratteristiche
Riferimento:
517V15587A
Tipologia:
Appartamento
Contratto:
Vendita
Prezzo:
2.333.100 €
Locali:
2
Camere:
1
Servizi:
1
Cantine:
1
Superficie abitabile:
51 m²
Superficie totale:
59 m²
Superficie terrazzato:
8 m²
Altre caratteristiche:
Posizione
Quartiere:
Fontvieille
Edificio:
Le Donatello
Mappa
Monaco
Opzioni aggiuntive

Questo documento non rappresenta un offerta o un contratto. Tutte le misure, superfici e distanze sono approssimative. Le descrizioni e planimetrie sono date a titolo indicativo e la loro esattezza non è garantita. Le fotografie mostrano solo alcune parti della proprietà alla data in cui son state fatte. L offerta di Vendita è valida salvo in caso di Vendita/affitto, ritiro dalla Vendita/affito o cambio del prezzo o altra condizione, senza avviso preliminare.

Annunci simili
    Vedi altri annunci simili
    Trovi questo annuncio in
    Richiedi info per questo immobile DONATELLO - Nel quartiere di Fontvieille, bellissimo appartamento di 2 locali, ristrutturato.
    Richiedi visita
    Seleziona le tue disponibilità
    Seleziona le fasce orarie

    Questa non è una prenotazione: le tue disponibilità saranno inviate all’inserzionista che si occuperà di ricontattarti.

    Prosegui
    /