Téléchargez la nouvelle app!

5

App Store Google Play

BELLE MAISON NEUVE DANS LA CONDAMINE

1/15
Prix à la demande
136 m² 4 Pièces
MB0001
Monaco - Condamine
136 m² 4 Pièces
MB0001

Simulateur de financement

Calculez votre capacité financière, les coûts et votre marge de manœuvre financière lors de l'achat d'un bien immobilier.

Description

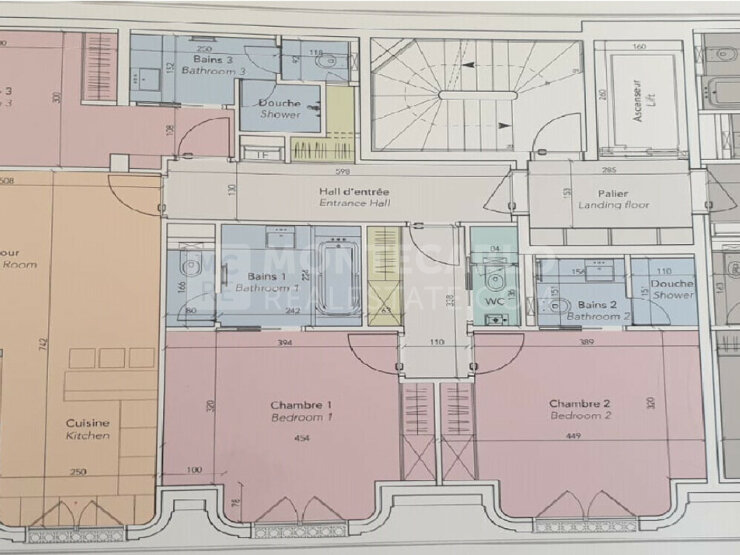
Niché dans le cœur animé du quartier de la Condamine, cet exquis appartement de 136 m² avec quatre chambres à coucher dans la prestigieuse Villa Portofino offre un mélange d'élégance et de confort moderne. La résidence, connue pour ses constructions récentes et ses équipements luxueux, vous accueille avec un hall d'entrée spacieux menant à un séjour lumineux qui s'ouvre sur une loggia sereine. La cuisine ouverte entièrement équipée est parfaite pour les amateurs de cuisine. La chambre principale dispose d'une salle de bains privative, tandis que deux autres chambres sont dotées de leur propre salle de douche. Une salle de bains pour les invités est à la disposition des visiteurs.

Cette propriété exceptionnelle est complétée par une grande place de parking, offrant suffisamment d'espace pour vos véhicules.

Caractéristiques
Référence:
MB0001
Type de propriété:
Appartement
Contrat:
Vente
Prix:
Prix à la demande
Pièces:
4
Chambres:
3
Salles de bain:
3
Caves:
1
Places de stationnement:
2
Superficie totale:
136 m²
Caractéristiques:
Situation
Quartier:
Condamine
Immeuble:
Villa PORTOFINO
Carte
Monaco
Options additionelles

Ce document ne fait partie d'aucune offre ou contrat. Toutes mesures, surfaces et distances sont approximatives. Le descriptif et les plans ne sont donnés qu'à titre indicatif et leur exactitude n'est pas garantie. Les photographies ne montrent que certaines parties de la propriété. L'offre est valable sauf en cas de vente, retrait de vente, changement de prix ou d'autres conditions, sans préalable.

Annonces similaires
    Voir d autres annonces similaires
    Retrouvez cette annonce dans
    Demander des informations pour cette propriété BELLE MAISON NEUVE DANS LA CONDAMINE
    Demander une visite
    Sélectionnez vos dates
    Sélectionnez les créneaux horaires

    Ceci n'est pas une réservation: Vos dates seront envoyées à l'annonceur qui vous contactera.

    Continuer
    /