Téléchargez la nouvelle app!

5

App Store Google Play

Riviera Palace | Monte-Carlo

1/3

Voulez-vous plus de photos?

Demandez à l'agence
1 550 000 €
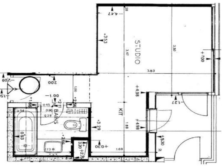
28 m² Studio Exclusif
HOMES-Sale-Riviera Studio
Monaco - Monte-Carlo
28 m² 1 pièces
1 550 000 € HOMES-Sale-Riviera Studio
Description

Ce charmant studio à vendre est situé dans un emplacement central dans un immeuble avec un concierge, bénéficiant de belles vues sur la ville et d’intérieurs lumineux avec une cuisine américaine.


  • Emplacement prestigieux à seulement 5 minutes à pied de la place du Casino
  • Studio spacieux avec de hauts plafonds
  • Beaucoup de lumière naturelle et belle terrasse
  • Jolies vues
  • Cuisine ouverte
  • Emplacement parfait à proximité de toutes les commodités 
  • Immeuble avec concierge et ascenseur
  • Parking pour une voiture
  • Studio à rénover
Caractéristiques
Référence:
HOMES-Sale-Riviera Studio
Type de propriété:
Appartement
Contrat:
Vente
Prix:
1 550 000 €
Pièces:
1
Salles de bain:
1
Places de stationnement:
1
Superficie habitable:
23 m²
Superficie totale:
28 m²
Superficie terrasse:
5 m²
Caractéristiques:
Situation
Quartier:
Monte-Carlo
Immeuble:
Riviera Palace
Carte
Monaco
Options additionelles

Ce document ne fait partie d'aucune offre ou contrat. Toutes mesures, surfaces et distances sont approximatives. Le descriptif et les plans ne sont donnés qu'à titre indicatif et leur exactitude n'est pas garantie. Les photographies ne montrent que certaines parties de la propriété. L'offre est valable sauf en cas de vente, retrait de vente, changement de prix ou d'autres conditions, sans préalable.

Annonces similaires
    Voir d autres annonces similaires
    Retrouvez cette annonce dans
    Demander des informations pour cette propriété Riviera Palace | Monte-Carlo
    Demander une visite
    Sélectionnez vos dates
    Sélectionnez les créneaux horaires

    Ceci n'est pas une réservation: Vos dates seront envoyées à l'annonceur qui vous contactera.

    Continuer
    /