Téléchargez la nouvelle app!

5

App Store Google Play

Le Zodiaque - Beau 3 pièces - Condamine

1/3

Voulez-vous plus de photos?

Demandez à l'agence
12 500 €
97 m² 3 Pièces
Zdq-3p5/Mc2-663
Monaco - Condamine
97 m² 3 Pièces
12 500 € Zdq-3p5/Mc2-663
Description

Le Zodiaque est un bel immeuble avec service de conciergerie, bénéficiant de 2 accès. L'une située à proximité de la Place d'Armes et son agréable marché, des restaurants, petits commerces et du Port. La deuxième sur le bd de Belgique à proximité des jardins de Parc Princesse Antoinette. Pour les conditions de location n'hésitez pas à nous contacter.


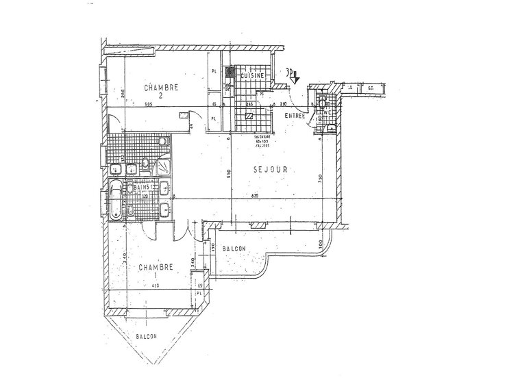
Une entrée, un double séjour, une cuisine séparée équipée, 1 chambre avec salle d'eau et espace de rangement, 1 chambre ensuite avec salle de bain et balcon privatif, 1 WC invité. 

L'appartement est actuellement en cours de travaux, les salles de bains ainsi que la cuisine vont être entièrement rénovés.

Loué avec un grand parking dans un immeuble voisin. 

Caractéristiques
Référence:
Zdq-3p5/Mc2-663
Type de propriété:
Appartement
Contrat:
Location
Prix:
12 500 €
Charges:
700 €
Charges incluses:
Non
Pièces:
3
Chambres:
2
Salles de bain:
2
Places de stationnement:
1
Superficie habitable:
86 m²
Superficie totale:
97 m²
Superficie terrasse:
11 m²
Caractéristiques:
Situation
Quartier:
Condamine
Immeuble:
Le Zodiaque
Carte
Monaco
Options additionelles

Ce document ne fait partie d'aucune offre ou contrat. Toutes mesures, surfaces et distances sont approximatives. Le descriptif et les plans ne sont donnés qu'à titre indicatif et leur exactitude n'est pas garantie. Les photographies ne montrent que certaines parties de la propriété. L'offre est valable sauf en cas de vente, retrait de vente, changement de prix ou d'autres conditions, sans préalable.

Annonces similaires
    Voir d autres annonces similaires
    Retrouvez cette annonce dans
    Demander des informations pour cette propriété Le Zodiaque - Beau 3 pièces - Condamine
    Demander une visite
    Sélectionnez vos dates
    Sélectionnez les créneaux horaires

    Ceci n'est pas une réservation: Vos dates seront envoyées à l'annonceur qui vous contactera.

    Continuer
    /