Téléchargez la nouvelle app!

5

App Store Google Play

DONATELLO - FONTVIEILLE

1/5
2 350 000 €
59 m² 2 Pièces
V-2PDON
Monaco - Fontvieille
59 m² 2 Pièces
2 350 000 € V-2PDON

Simulateur de financement

Calculez votre capacité financière, les coûts et votre marge de manœuvre financière lors de l'achat d'un bien immobilier.

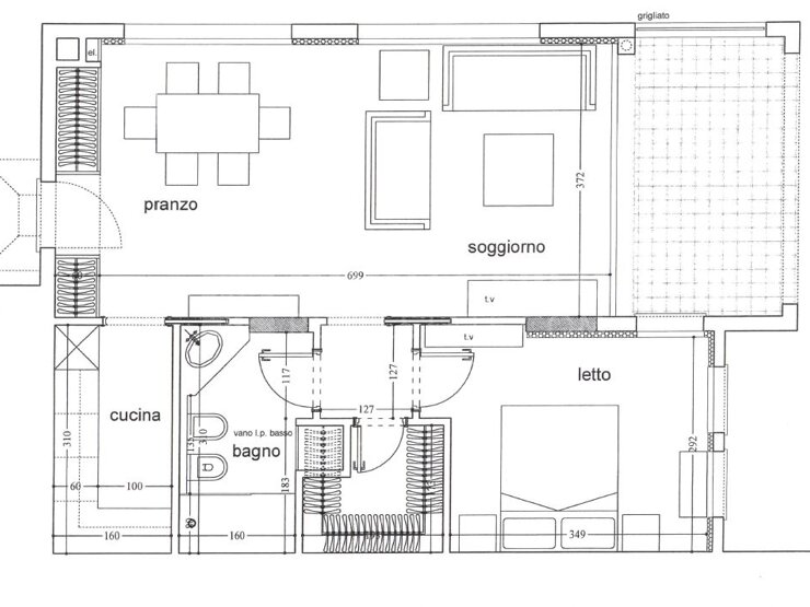
Description

Superbe appartement en parfait état, entièrement rénové récemment, avec une surface habitable de 51 m². Il dispose d’une cave de rangement ainsi que d’un emplacement de parking au sein de la résidence. Emplacement privilégié à proximité immédiate des commodités du quartier de Fontvieille.


  • Appartement situé au rez-de-chaussée, face aux jardins, très calme
  • Séjour lumineux ouvrant sur une loggia agréable
  • Chambre principale avec placards, salle de bains et dressing
  • Cuisine moderne entièrement aménagée et équipée
  • Une place de parking ainsi qu'une cave sont incluses dans la résidence
  • Emplacement idéal à proximité immédiate des commerces, du port et de l’héliport
Caractéristiques
Référence:
V-2PDON
Type de propriété:
Appartement
Contrat:
Vente
Prix:
2 350 000 €
Pièces:
2
Chambres:
1
Salles de bain:
1
Caves:
1
Places de stationnement:
1
Superficie habitable:
51 m²
Superficie totale:
59 m²
Superficie terrasse:
8 m²
Caractéristiques:
Situation
Quartier:
Fontvieille
Immeuble:
Le Donatello
Carte
Monaco
Options additionelles

Ce document ne fait partie d'aucune offre ou contrat. Toutes mesures, surfaces et distances sont approximatives. Le descriptif et les plans ne sont donnés qu'à titre indicatif et leur exactitude n'est pas garantie. Les photographies ne montrent que certaines parties de la propriété. L'offre est valable sauf en cas de vente, retrait de vente, changement de prix ou d'autres conditions, sans préalable.

Annonces similaires
    Voir d autres annonces similaires
    Retrouvez cette annonce dans
    Demander des informations pour cette propriété DONATELLO - FONTVIEILLE
    Demander une visite
    Sélectionnez vos dates
    Sélectionnez les créneaux horaires

    Ceci n'est pas une réservation: Vos dates seront envoyées à l'annonceur qui vous contactera.

    Continuer
    /