Téléchargez la nouvelle app!

5

App Store Google Play

Le Margaret - 3 Pièces

1/2

Voulez-vous plus de photos?

Demandez à l'agence
3 690 000 €
93 m² 3 Pièces
Le Margaret
Monaco - La Rousse - Saint Roman
93 m² 3 Pièces
3 690 000 € Le Margaret

Simulateur de financement

Calculez votre capacité financière, les coûts et votre marge de manœuvre financière lors de l'achat d'un bien immobilier.

Description

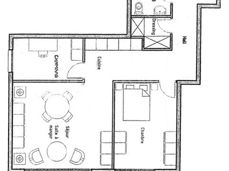
Appartement rénové à usage mixte


Appartement de trois pièces rénové à usage mixte, lumineux. 

Composé d'une entrée, grand salon/salle à manger, deux chambres, dressing, salle de douches, cuisine équipée. Une cave. 

Il est actuellement loué en bureau à 6.400 € + 230 € de charges. 

Rentabilité 2;27 % 

Caractéristiques
Référence:
Le Margaret
Type de propriété:
Appartement
Contrat:
Vente
Prix:
3 690 000 €
Pièces:
3
Chambres:
2
Salles de bain:
1
Caves:
1
Superficie habitable:
84 m²
Superficie totale:
93 m²
Superficie terrasse:
8 m²
Caractéristiques:
Situation Carte
Monaco
Options additionelles

Ce document ne fait partie d'aucune offre ou contrat. Toutes mesures, surfaces et distances sont approximatives. Le descriptif et les plans ne sont donnés qu'à titre indicatif et leur exactitude n'est pas garantie. Les photographies ne montrent que certaines parties de la propriété. L'offre est valable sauf en cas de vente, retrait de vente, changement de prix ou d'autres conditions, sans préalable.

Annonces similaires
    Voir d autres annonces similaires
    Retrouvez cette annonce dans
    Demander des informations pour cette propriété Le Margaret - 3 Pièces
    Demander une visite
    Sélectionnez vos dates
    Sélectionnez les créneaux horaires

    Ceci n'est pas une réservation: Vos dates seront envoyées à l'annonceur qui vous contactera.

    Continuer
    /