Téléchargez la nouvelle app!

5

App Store Google Play

Bel appartement Condamine

1/2

Voulez-vous plus de photos?

Demandez à l'agence
12 500 €
97 m² 3 Pièces
AL 219 MC
Monaco - Condamine
97 m² 3 Pièces
12 500 € AL 219 MC
Description

Proche écoles, commodités et commerces


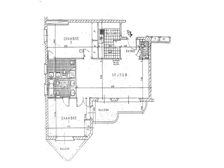
Situé dans un immeuble avec concierge, à deux pas de la place d'Armes, bel appartement en cours de rénovation, composé d'une entrée, séjour avec balcon, cuisine équipée, 2 chambres avec salle de bains attenantes, toilette invités. Placards. Climatisation et double vitrage.

Cave et Parking au Beverly Palace. Bail de 3 ans. .

 

Caractéristiques
Référence:
AL 219 MC
Type de propriété:
Appartement
Contrat:
Location
Prix:
12 500 €
Charges:
700 €
Charges incluses:
Non
Etage:
5
Pièces:
3
Chambres:
2
Salles de bain:
2
Caves:
1
Places de stationnement:
1
Superficie habitable:
86 m²
Superficie totale:
97 m²
Superficie terrasse:
11 m²
Caractéristiques:
Situation
Quartier:
Condamine
Immeuble:
Le Zodiaque
Carte
Monaco
Options additionelles

Ce document ne fait partie d'aucune offre ou contrat. Toutes mesures, surfaces et distances sont approximatives. Le descriptif et les plans ne sont donnés qu'à titre indicatif et leur exactitude n'est pas garantie. Les photographies ne montrent que certaines parties de la propriété. L'offre est valable sauf en cas de vente, retrait de vente, changement de prix ou d'autres conditions, sans préalable.

Annonces similaires
    Voir d autres annonces similaires
    Retrouvez cette annonce dans
    Demander des informations pour cette propriété Bel appartement Condamine
    Demander une visite
    Sélectionnez vos dates
    Sélectionnez les créneaux horaires

    Ceci n'est pas une réservation: Vos dates seront envoyées à l'annonceur qui vous contactera.

    Continuer
    /