Téléchargez la nouvelle app!

5

App Store Google Play

FONTVIEILLE: Spacieux appartement 5 pièces en location

1/3

Voulez-vous plus de photos?

Demandez à l'agence
28 000 €
305 m² +5 pièces
FV - MMC - 031 - L-P
Monaco - Fontvieille
305 m² 5 Pièces
28 000 € FV - MMC - 031 - L-P
Description

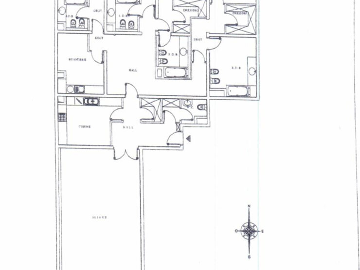
Situé dans la résidence recherchée du Grand Large, cet appartement de 5 pièces bénéficie d’une belle terrasse avec vues ouvertes sur le port et la mer. Un cadre de vie lumineux et agréable, idéal pour une famille.


L’appartement s’organise autour d’une entrée menant à un séjour confortable et  salle à manger, prolongés par une terrasse offrant une vue dégagée sur le port et la mer. La cuisine indépendante s’intègre de manière fonctionnelle à l’ensemble, permettant une utilisation fluide au quotidien.

L’espace nuit comprend plusieurs chambres offrant de bonnes conditions de confort pour une vie familiale, avec une distribution équilibrée entre espaces de vie et espaces privés. La luminosité naturelle et l’ouverture sur l’extérieur contribuent à une atmosphère sereine et agréable, au sein d’une résidence appréciée pour son environnement et sa proximité du port.

Deux emplacements de parking ainsi qu’une cave complètent ce bien.

N’hésitez pas à nous contacter pour plus de détails ou organiser une visite.

Caractéristiques
Référence:
FV - MMC - 031 - L-P
Type de propriété:
Appartement
Contrat:
Location
Prix:
28 000 €
Charges:
4 000 €
Charges incluses:
Non
Pièces:
5
Chambres:
4
Salles de bain:
4
Caves:
1
Places de stationnement:
2
Superficie habitable:
252 m²
Superficie totale:
305 m²
Superficie terrasse:
53 m²
Situation
Quartier:
Fontvieille
Immeuble:
Memmo Center
Carte
Monaco
Options additionelles

Ce document ne fait partie d'aucune offre ou contrat. Toutes mesures, surfaces et distances sont approximatives. Le descriptif et les plans ne sont donnés qu'à titre indicatif et leur exactitude n'est pas garantie. Les photographies ne montrent que certaines parties de la propriété. L'offre est valable sauf en cas de vente, retrait de vente, changement de prix ou d'autres conditions, sans préalable.

Annonces similaires
    Voir d autres annonces similaires
    Retrouvez cette annonce dans
    Demander des informations pour cette propriété FONTVIEILLE: Spacieux appartement 5 pièces en location
    Demander une visite
    Sélectionnez vos dates
    Sélectionnez les créneaux horaires

    Ceci n'est pas une réservation: Vos dates seront envoyées à l'annonceur qui vous contactera.

    Continuer
    /