Lade die neue App herunter!

5

App Store Google Play

BUREAU ADMINISTRATIF A VENDRE !

1/6
3.500.000 €
94 m² 2 Zimmer
VA-M10102022RAPH2
Monaco - Fontvieille
94 m² 2 Zimmer
3.500.000 € VA-M10102022RAPH2

Simulateur de financement

Calculez votre capacité financière, les coûts et votre marge de manœuvre financière lors de l'achat d'un bien immobilier.

Beschreibung

BUREAU EN PARFAIT ÉTAT À VENDRE.


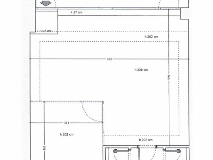
Bureau en parfait état, très calme et donnant sur jardin, grande vitrine, parquet au sol. 

Se compose de : une pièce principale comprenant deux bureaux cloisonnés, une salle de bain comprenant deux W.C. (Homme et Femme). 

Actuellement loué au prix de 9.100 € / mois TTC La durée de la location est de 1 année, venant à échéance le 30/09/2025 Bail actuel à usage de bureau administratif 
 

PRIX NET VENDEUR : 3.500.000 €  commission acquéreur en sus 

Merkmale
Bezug:
VA-M10102022RAPH2
Typ der Immobilie:
Büro
Vertrag:
Verkauf
Preis:
3.500.000 €
Zimmer:
2
Wohnbereich:
94 m²
Gesamtfläche:
94 m²
Andere Eigenschaften:
Position
Stadtbezirk:
Fontvieille
Gebäude:
Raphael
Karte
Monaco
Zusatzoptionen

Dieses Dokument stellt weder ein Angebot noch einen Vertrag dar. Alle Maße, Flächen und Entfernungen sind ungefähre Angaben. Die Beschreibungen und Pläne dienen nur zur Information und ihre Richtigkeit wird nicht garantiert. Die Fotos zeigen nur Teile der Immobilie zu dem Zeitpunkt, an dem sie aufgenommen wurden. Das Verkaufsangebot ist gültig, es sei denn, es handelt sich um einen Verkauf/Vermietung, einen Rücktritt vom Verkauf/Vermietung oder eine Änderung des Preises oder anderer Bedingungen, ohne vorherige Ankündigung.

Ähnliche Anzeigen
    Mehr ähnliche Anzeigen ansehen
    Finden Sie diese Anzeige in
    Fordern Sie Informationen zu dieser Immobilie an BUREAU ADMINISTRATIF A VENDRE !
    Besichtigung anfordern
    Wählen Sie Ihre Daten aus
    Wählen Sie die Zeitfenster aus

    Dies ist keine Buchung: Ihre Daten werden an den Inserenten gesendet, der Sie kontaktieren wird.

    Fortfahren
    /