Lade die neue App herunter!

5

App Store Google Play

IDEALER ARBEITSPLATZ - GROSSES BÜRO IN ROCAZUR

1/4
12.900 €
229 m² +5 Einheimische
AG-RocazurBur2_10
Monaco - La Rousse - Saint Roman
229 m² 5 Zimmer
12.900 € AG-RocazurBur2_10
Beschreibung

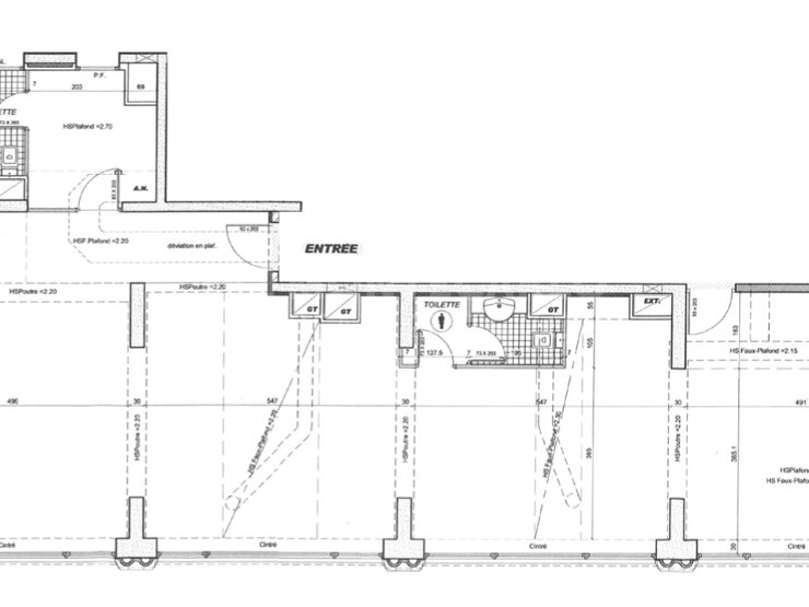
Geräumiges Büro, das ein ideales professionelles Umfeld bietet. Das Büro liegt günstig in der Nähe von Bushaltestellen und ist nur wenige Gehminuten von Restaurants, einem Supermarkt und einem Aufzug entfernt, der es mit Larvotto verbindet.


Ausgezeichnetes Büro im ersten Stock von Rocazur im ruhigen, aber gut angebundenen Viertel La Rousse - Saint-Roman.

Das Anwesen besteht aus einer Eingangshalle, einer Küchenzeile mit Kaffeebereich, einem großen Arbeitsbereich und separaten Toiletten.

3 Parkplätze vervollständigen das Anwesen.

Merkmale
Bezug:
AG-RocazurBur2_10
Typ der Immobilie:
Büro
Vertrag:
Miete
Preis:
12.900 €
Servicekosten:
1.300 €
Servicekosten enthalten:
Nein
Zimmer:
5
Dienstleistungen:
2
Parkplätze:
3
Wohnbereich:
229 m²
Gesamtfläche:
229 m²
Andere Eigenschaften:
Position
Stadtbezirk:
La Rousse - Saint Roman
Gebäude:
Rocazur
Karte
Monaco
Zusatzoptionen

Dieses Dokument stellt weder ein Angebot noch einen Vertrag dar. Alle Maße, Flächen und Entfernungen sind ungefähre Angaben. Die Beschreibungen und Pläne dienen nur zur Information und ihre Richtigkeit wird nicht garantiert. Die Fotos zeigen nur Teile der Immobilie zu dem Zeitpunkt, an dem sie aufgenommen wurden. Das Verkaufsangebot ist gültig, es sei denn, es handelt sich um einen Verkauf/Vermietung, einen Rücktritt vom Verkauf/Vermietung oder eine Änderung des Preises oder anderer Bedingungen, ohne vorherige Ankündigung.

Ähnliche Anzeigen
    Mehr ähnliche Anzeigen ansehen
    Finden Sie diese Anzeige in
    Fordern Sie Informationen zu dieser Immobilie an IDEALER ARBEITSPLATZ - GROSSES BÜRO IN ROCAZUR
    Besichtigung anfordern
    Wählen Sie Ihre Daten aus
    Wählen Sie die Zeitfenster aus

    Dies ist keine Buchung: Ihre Daten werden an den Inserenten gesendet, der Sie kontaktieren wird.

    Fortfahren
    /