Lade die neue App herunter!

5

App Store Google Play

VENTE- BUREAUX- RAPHAEL-FONTVIEILLE- MONACO

1/2

Möchten Sie mehr Fotos?

Anfragen an die Agentur
3.626.000 €
94 m²
PE_2 BUREAUX_RAPHAEL 725
Monaco - Fontvieille
94 m²
3.626.000 € PE_2 BUREAUX_RAPHAEL 725

Simulateur de financement

Calculez votre capacité financière, les coûts et votre marge de manœuvre financière lors de l'achat d'un bien immobilier.

Beschreibung

Le quartier de Fontvieille, sorti de mer en 1966 est une véritable prouesse architecturale. L’immobilier de Fontvieille est particulièrement prisé par des familles pour son cadre de vie exceptionnel au quotidien, éducation, santé mais également loisirs en abondance ou chacun des membres de votre famille pourra pleinement s’y épanouir !


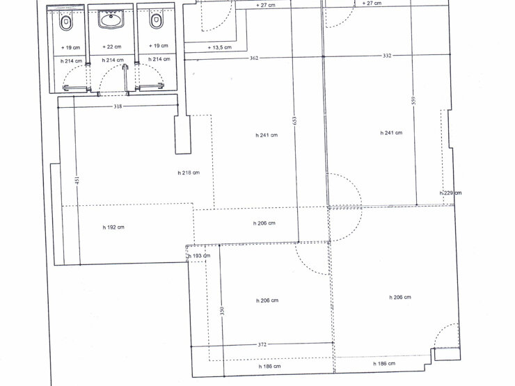
Agréable bureaux, en parfait état, avec possibilité de les réunir, qui donnent sur le jardin et disposent des grandes vitrines.

Les bureaux sont composé par une piece principale comprenant 3 bureaux avec cloison vitrées, 2 WC et un dégagement. 

 

Merkmale
Bezug:
PE_2 BUREAUX_RAPHAEL 725
Typ der Immobilie:
Büro
Vertrag:
Verkauf
Preis:
3.626.000 €
Gesamtfläche:
94 m²
Andere Eigenschaften:
Position
Stadtbezirk:
Fontvieille
Gebäude:
Raphael
Karte
Monaco
Zusatzoptionen

Dieses Dokument stellt weder ein Angebot noch einen Vertrag dar. Alle Maße, Flächen und Entfernungen sind ungefähre Angaben. Die Beschreibungen und Pläne dienen nur zur Information und ihre Richtigkeit wird nicht garantiert. Die Fotos zeigen nur Teile der Immobilie zu dem Zeitpunkt, an dem sie aufgenommen wurden. Das Verkaufsangebot ist gültig, es sei denn, es handelt sich um einen Verkauf/Vermietung, einen Rücktritt vom Verkauf/Vermietung oder eine Änderung des Preises oder anderer Bedingungen, ohne vorherige Ankündigung.

Ähnliche Anzeigen
    Mehr ähnliche Anzeigen ansehen
    Finden Sie diese Anzeige in
    Fordern Sie Informationen zu dieser Immobilie an VENTE- BUREAUX- RAPHAEL-FONTVIEILLE- MONACO
    Besichtigung anfordern
    Wählen Sie Ihre Daten aus
    Wählen Sie die Zeitfenster aus

    Dies ist keine Buchung: Ihre Daten werden an den Inserenten gesendet, der Sie kontaktieren wird.

    Fortfahren
    /