Téléchargez la nouvelle app!

5

App Store Google Play

Chambre de service idéalement située à usage mixte

1/3

Voulez-vous plus de photos?

Demandez à l'agence
250 000 €
Studio Exclusif
CalypsoAzura
Monaco - La Rousse - Saint Roman
1 pièces
250 000 € CalypsoAzura
Description

Chambre de service idéalement située dans immeuble avec gardien


Chambre de service au calme absolu mais idéalement située à proximité des plages du Larvotto et de tous les commerces. Elle se trouve dans un bel immeuble avec gardien.

Uasge mixte, donc possibilité de domicilier une Sarl.

Très bonne rentabilité envisageable.

Caractéristiques
Référence:
CalypsoAzura
Type de propriété:
Chambre de service
Contrat:
Vente
Prix:
250 000 €
Pièces:
1
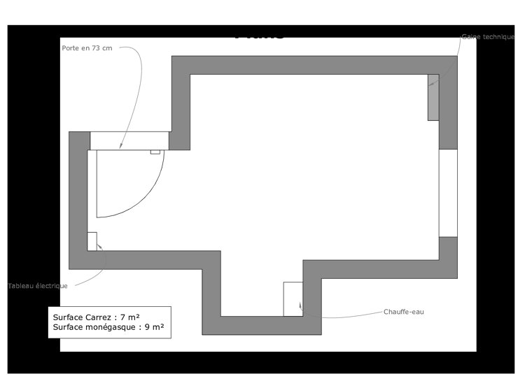
Superficie habitable:
9 m²
Caractéristiques:
Situation
Quartier:
La Rousse - Saint Roman
Immeuble:
Le Calypso
Carte
Monaco
Options additionelles

Ce document ne fait partie d'aucune offre ou contrat. Toutes mesures, surfaces et distances sont approximatives. Le descriptif et les plans ne sont donnés qu'à titre indicatif et leur exactitude n'est pas garantie. Les photographies ne montrent que certaines parties de la propriété. L'offre est valable sauf en cas de vente, retrait de vente, changement de prix ou d'autres conditions, sans préalable.

Annonces similaires
    Voir d autres annonces similaires
    Retrouvez cette annonce dans
    Demander des informations pour cette propriété Chambre de service idéalement située à usage mixte
    Demander une visite
    Sélectionnez vos dates
    Sélectionnez les créneaux horaires

    Ceci n'est pas une réservation: Vos dates seront envoyées à l'annonceur qui vous contactera.

    Continuer
    /