Téléchargez la nouvelle app!

5

App Store Google Play

L'adresse idéale pour une famille

1/2

Voulez-vous plus de photos?

Demandez à l'agence
28 000 €
305 m² +5 pièces
MP-0291
Monaco - Fontvieille
305 m² 5 Pièces
28 000 € MP-0291
Description

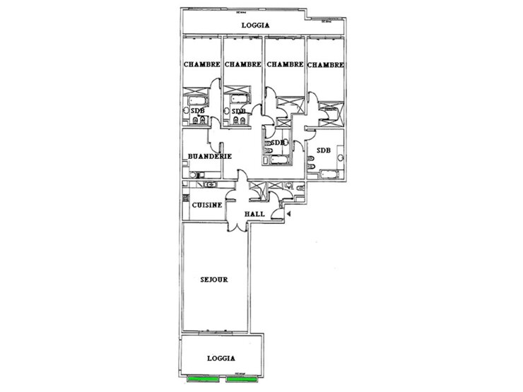
Appartement traversant


Luxueux appartement dans la Marina de Fontvieille, face au port de Cap d'Ail. Traversant Sud/Nord.
Idéalement agencé, spacieuse terrasse/loggia face mer, et terrasse / loggia le long des chambres. A proximité immédiate de toutes les commodités.

Entrée, séjour, cuisine équipée, buanderie, 4 chambres, 2 dressings, 3 placards, 4 salles de bains, WC invité, 2 vastes loggias. 2 parkings, 1 cave.
Caractéristiques
Référence:
MP-0291
Type de propriété:
Appartement
Contrat:
Location
Prix:
28 000 €
Charges:
4 001 €
Charges incluses:
Non
Charges annuelles:
48006
Etage:
3
Pièces:
5
Chambres:
4
Salles de bain:
4
Caves:
1
Places de stationnement:
2
Superficie habitable:
252 m²
Superficie totale:
305 m²
Superficie terrasse:
53 m²
Caractéristiques:
Situation
Quartier:
Fontvieille
Immeuble:
Memmo Center
Carte
Monaco
Options additionelles

Ce document ne fait partie d'aucune offre ou contrat. Toutes mesures, surfaces et distances sont approximatives. Le descriptif et les plans ne sont donnés qu'à titre indicatif et leur exactitude n'est pas garantie. Les photographies ne montrent que certaines parties de la propriété. L'offre est valable sauf en cas de vente, retrait de vente, changement de prix ou d'autres conditions, sans préalable.

Annonces similaires
    Voir d autres annonces similaires
    Retrouvez cette annonce dans
    Demander des informations pour cette propriété L'adresse idéale pour une famille
    Demander une visite
    Sélectionnez vos dates
    Sélectionnez les créneaux horaires

    Ceci n'est pas une réservation: Vos dates seront envoyées à l'annonceur qui vous contactera.

    Continuer
    /