Téléchargez la nouvelle app!

5

App Store Google Play

Grand appartement familial en duplex | Immeuble moderne | Condamine

1/3

Voulez-vous plus de photos?

Demandez à l'agence
14 400 000 €
213 m² 4 Pièces
MP-3018
Monaco - Condamine
213 m² 4 Pièces
14 400 000 € MP-3018
Description

Au cœur du quartier prisé de La Condamine, à deux pas du port, découvrez ce superbe duplex familial offrant de beaux volumes, une luminosité remarquable et des vues mer, au sein de la résidence de standing Le Stella avec conciergerie et salle de sport.


Situé dans le quartier historique et commerçant de la Condamine, à quelques pas du port, ce bel appartement familial en duplex offres des volumes généreux et des espaces de vie soigneusement élaborés.
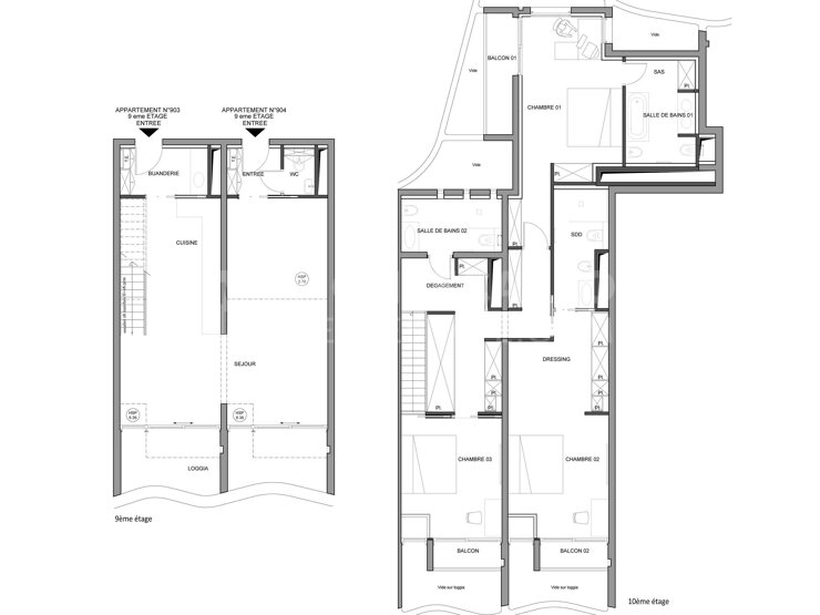
Vaste et lumineux, il se compose au 1er étage d'une entrée avec toiletes invités, un séjour avec loggia offrant une vue mer, une grande cuisine équipée avec son espace repas et loggia ainsi qu'une buanderie.

Un escalier menant au niveau supérieur, l'espace nuit, composé d'un palier desservant la suite parentale avec balcon et vue mer, un dressing, un espace bureau et salle de douche attenante, une seconde suite avec balcon, salle de bains attenante et placards, ainsi qu'une 3ème chambre avec rangements et salle de douche séparée.
Possibilité d'acheter meublé.

Une cave et 2 parkings sont inclus.

Le Stella est un immeuble de très bon standing avec service de conciergerie et salle de sport. Son architecture épurée offre à ses résidents un cadre de vie contemporain et intimiste.
Caractéristiques
Référence:
MP-3018
Type de propriété:
Appartement
Contrat:
Vente
Prix:
14 400 000 €
Etage:
9
Pièces:
4
Chambres:
3
Salles de bain:
3
Caves:
1
Places de stationnement:
2
Superficie habitable:
187 m²
Superficie totale:
213 m²
Superficie terrasse:
26 m²
Caractéristiques:
Situation
Quartier:
Condamine
Immeuble:
Le Stella
Carte
Monaco
Options additionelles

Ce document ne fait partie d'aucune offre ou contrat. Toutes mesures, surfaces et distances sont approximatives. Le descriptif et les plans ne sont donnés qu'à titre indicatif et leur exactitude n'est pas garantie. Les photographies ne montrent que certaines parties de la propriété. L'offre est valable sauf en cas de vente, retrait de vente, changement de prix ou d'autres conditions, sans préalable.

Annonces similaires
    Voir d autres annonces similaires
    Retrouvez cette annonce dans
    Demander des informations pour cette propriété Grand appartement familial en duplex | Immeuble moderne | Condamine
    Demander une visite
    Sélectionnez vos dates
    Sélectionnez les créneaux horaires

    Ceci n'est pas une réservation: Vos dates seront envoyées à l'annonceur qui vous contactera.

    Continuer
    /