Téléchargez la nouvelle app!

5

App Store Google Play

FONTVIEILLE / TITIEN / BUREAU / LOCAL COMMERCIAL

1/11
5 340 €
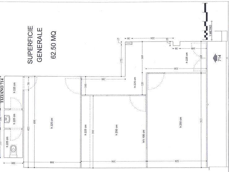
63 m² 3 Pièces
LPMC-TIT 714
Monaco - Fontvieille
63 m² 3 Pièces
5 340 € LPMC-TIT 714

Simulateur de financement

Calculez votre capacité financière, les coûts et votre marge de manœuvre financière lors de l'achat d'un bien immobilier.

Description

FONTVEILLE -  BUREAU ADMINISTRATIF situé dans une petite copropriété de qualité au cœur du village de Fontvieille. Service de sécurité, toutes commodités à proximité.
Spacieux bureau  avec grande baie vitrée offrant une vue sur les jardins composé d’une  pièce principale comprenant trois  bureaux avec fenêtres cloisonnées, un coin kitchenette, un  WC.

Loyer mensuel  HT : €. 4450 euros + 890 euros TVA + 500 de p/ charges soit 5840 euros 

bail 35 mois maximum

Caractéristiques
Référence:
LPMC-TIT 714
Type de propriété:
Bureau
Contrat:
Location
Prix:
5 340 €
Charges:
500 €
Charges incluses:
Oui
Pièces:
3
Superficie habitable:
63 m²
Superficie totale:
63 m²
Situation
Quartier:
Fontvieille
Immeuble:
Titien
Carte
Monaco
Options additionelles

Ce document ne fait partie d'aucune offre ou contrat. Toutes mesures, surfaces et distances sont approximatives. Le descriptif et les plans ne sont donnés qu'à titre indicatif et leur exactitude n'est pas garantie. Les photographies ne montrent que certaines parties de la propriété. L'offre est valable sauf en cas de vente, retrait de vente, changement de prix ou d'autres conditions, sans préalable.

Annonces similaires
    Voir d autres annonces similaires
    Retrouvez cette annonce dans
    Demander des informations pour cette propriété FONTVIEILLE / TITIEN / BUREAU / LOCAL COMMERCIAL
    Demander une visite
    Sélectionnez vos dates
    Sélectionnez les créneaux horaires

    Ceci n'est pas une réservation: Vos dates seront envoyées à l'annonceur qui vous contactera.

    Continuer
    /