Download the new app!

5

App Store Google Play

PORT OF FONTVIEILLE - CIMABUE - Office with window

1/2

Do you want more photos?

Requests to the agency
2,950 €
24 sqm Studio
CMB01
Monaco - Fontvieille
24 sqm 1 room
2,950 € CMB01

Mortgage calculator

Calculate affordability, costs, and your financial leeway when buying property.

Description

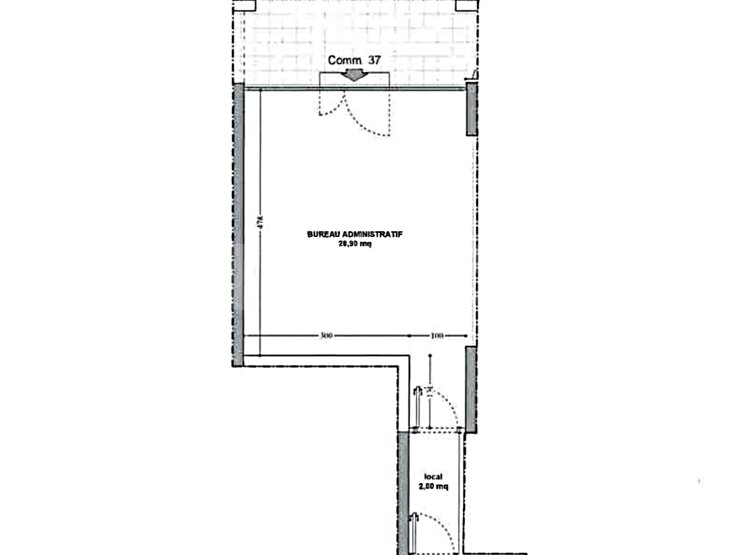
Administrative office with window in perfect condition on the ground floor of the prestigious building "Le Cimabue", offering a view over the Port of Fontvieille.


This bright office is composed of:

  • a main room
  • a storeroom
  • a toilet

The guard station of the village of Fontvieille provides 24/7  reception, security services through regular tours, maintenance for air conditioning, heating, and more.

  • Monthly rent (excl. VAT): € 2 950
  • VAT (20%): € 590
  • Monthly fixed charges: € 550 (including water consumption, air  conditioning, and heating).
Features
Reference:
CMB01
Type of property:
Office
Contract:
Rent
Price:
2,950 €
Service expenses:
550 €
Service costs included:
No
Rooms:
1
Living area:
24 sqm
Total area:
24 sqm
Position
District:
Fontvieille
Building:
Le Cimabue
Map
Monaco
Additional options

This document does not form part of any offer or contract. All measurements, areas and distances are approximate. The information and plans contained herein are believed to be correct, however, their accuracy is not guaranteed. The photographs show only certain parts of the property at the time they were taken. This offer is subject to change of price or other conditions, without prior notice.

Similar properties
    See more similar properties
    Featured in
    Request info for this property PORT OF FONTVIEILLE - CIMABUE - Office with window
    Request a visit
    Select dates
    Select time slots

    This is not a booking: Your availabilities will be sent to the advertiser who will contact you.

    Continue
    /